Getting There

Kate Lyall Psychologist is located at Aurora on Pirie at 147 Pirie Street, Adelaide in Suite 501. The closest parking can be found at Wilson Parking on Pirie Street or there are 1, 2 & 3 hour ticket parking around Hindmarsh Square.

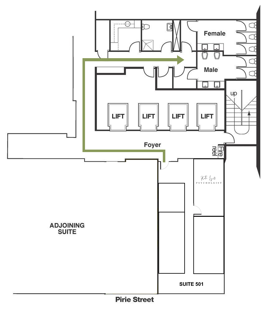
Once you have arrived at 147 Pirie Street, enter through the front doors into the lobby.

Take the elevators to Level 5

Kate Lyall Psychologist can be found in Suite 501 on Level 5, which is on your left as you exit the elevator.

Once inside the waiting room, take a seat and Kate Lyall will be with you as soon as she can.

If you need to use the bathroom while you wait, or after your session, these can be conveniently found behind the elevators.